Skip to main content
Pending
$245,000

8435 Tauromee Avenue
Kansas City, KS 66112

Single Family
Residential
5
Beds
2
Baths
1,689
Sq. Ft.
0.2
Acre Lot
KCRAR Websites> Kansas> Kansas City> 66112
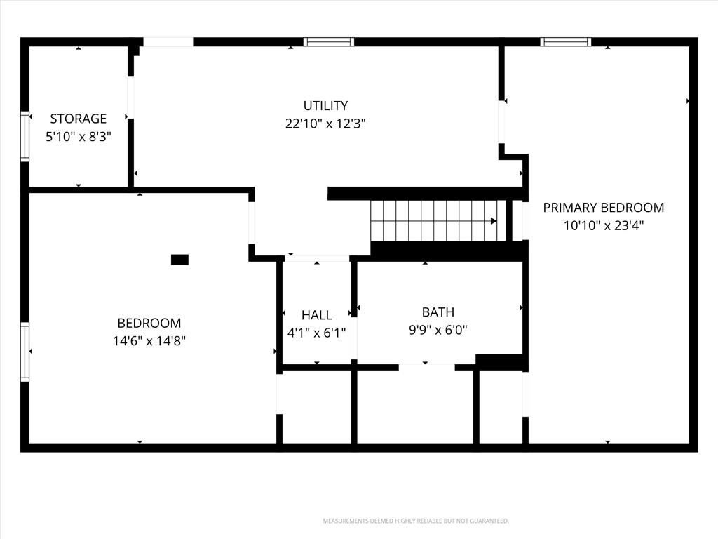
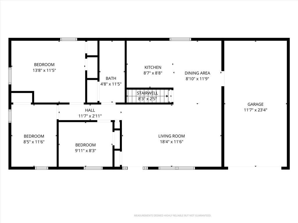
From the moment you step inside, this charming move-in-ready ranch home feels bright and welcoming. Natural light fills the main level, which features an inviting eat-in kitchen, a comfortable living room, three cozy bedrooms, and a full bathroom. The finished walk-out basement adds two larger conforming bedrooms with spacious walk-in closets and a full bath, providing flexible space for guests, work, or relaxation. Step outside to unwind on the wooden deck and enjoy the large, fenced backyard. An extra-deep one-car garage offers abundant storage. A gravel side driveway provides additional parking. Conveniently located minutes from major highways, shopping, and dining.
2600835
Residential - Single Family, Traditional, 1 Story
5
2 Full
1969
Wyandotte
0.2 Acres
Public Water
1.5
Metal Siding, Wood Siding
Public Sewer
Loading...
The scores below measure the walkability of the address, access to public transit of the area and the convenience of using a bike on a scale of 1-100

Walk Score

Transit Score

Bike Score

Loading...
The information displayed on this page is confidential, proprietary, and copyrighted information of Heartland Multiple Listing Service, Inc. (Heartland MLS). Copyright 2022, Heartland Multiple Listing Service, Inc. Heartland MLS do not make any warranty or representation concerning the timeliness or accuracy of the information displayed herein. In consideration for the receipt of the information on this page, the recipient agrees to use the information solely for the private non-commercial purpose of identifying a property in which the recipient has a good faith interest in acquiring.
This content last refreshed on 3/8/2026 12:54 PM CST. Some properties which appear for sale on this web site may subsequently have sold or may no longer be available.
Information is deemed reliable but is not guaranteed.